Dự án được đặt hàng bởi khách hàng thân thiết với mong muốn :
- Cải tạo Nhà phố cũ 5×20
- Xây Khối nhà mới 10×20
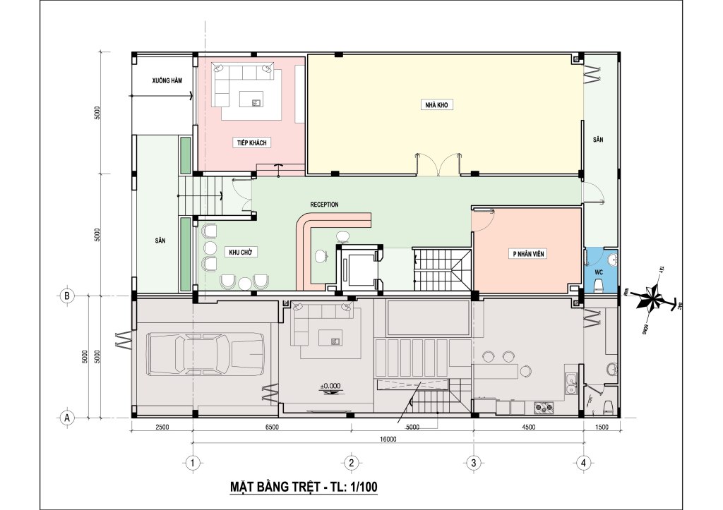
- Kết hợp thành Khối nhà 15×20 Bao gồm : Văn phòng công ty (trưng bày+ làm việc) ở Trệt và Lầu 1. Không gian sinh hoạt của gia chủ ở Lầu 2+ Sân thượng
Giải pháp của KTS tập trung vào kiến tạo Không Gian Sống đẳng cấp cho gia chủ: Sáng tạo riêng một Khu vườn thiền (trà đạo), giải Pháp cầu thang kết hợp thông tầng kết nối không gian Trên và Dưới, các vườn và mảng xanh,…


Phần nội thất được thiết tỉ mỉ theo gu thẩm mỹ của gia chủ, kết hợp giữa trường phái Zen Nhật Bản và không gian vườn Việt Nam



Khối văn phòng được thiết kế phù hợp riêng với Nhãn Hàng Thời Trang Papka



Bình luận về bài viết này