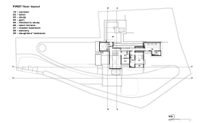
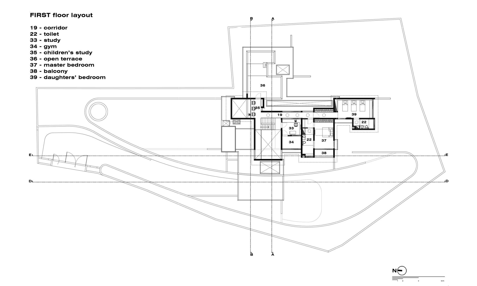
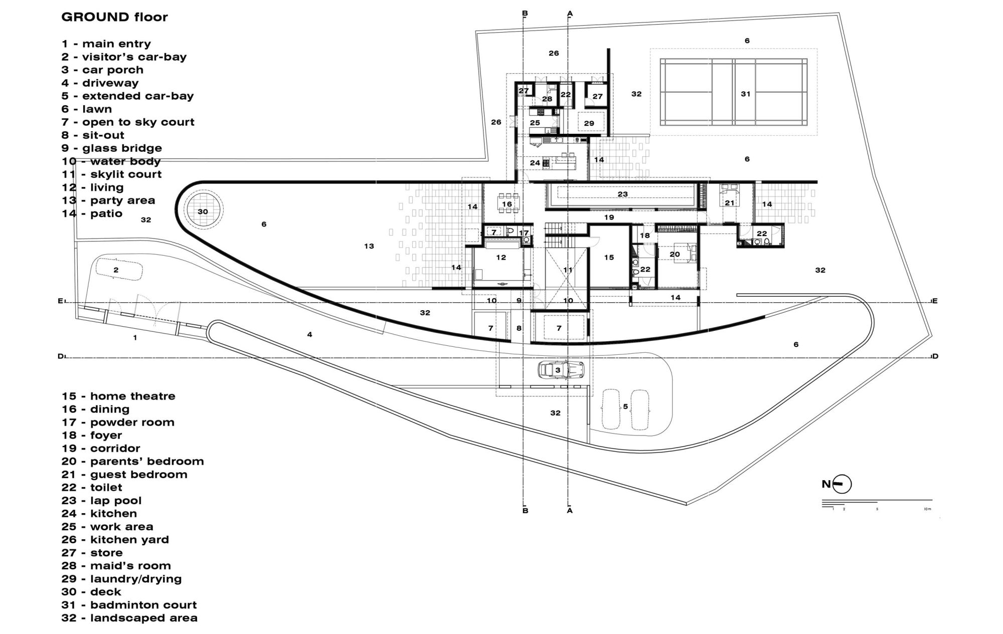
Nhà Running Wall ở Kerala, Ấn Độ bởi hãng LIJO RENY Architects được xây dựng với vẻ bề ngoài giống như một pháo đài làm gợi nhớ đến Vạn Lý Trường Thành của Trung Quốc. Ngôi nhà nằm giữa hai bức tường đá kéo dài về phía sân, khám phá tiềm năng không gian đa dạng cùng với các khu vực phân chia khác nhau, bắt mắt và tạo cảm giác thú vị.
Các mối liên kết giữa các khu vực trong nhà và ngoài trời, những khoảng trống bên trong tường và các vật liệu kết hợp bổ sung giúp tạo vẻ đẹp bí ẩn cho ngôi nhà. Được thiết kế khéo léo, ngôi nhà để lại ấn tượng mạnh của sự lưu động. Phòng ăn và phòng khách mở ra cảnh quan tươi đẹp trong khi nhà bếp mở rộng ra cảnh sân vườn bên ngoài.
Ngôi nhà được trang trí rất ít với trần nhà hình vòm, sàn gỗ và hồ bơi bên trong dẫn lên phòng khách và phòng ăn. Trong sân vườn, gần cầu thang và tầng trên, cây dương xỉ, chuối và những cây trồng nhiệt đới khác được trồng xen kẽ với nhau, tạo cảnh quan xanh tươi cho ngôi nhà.
Bình An
(Theo freshome.com)


















Bình luận về bài viết này