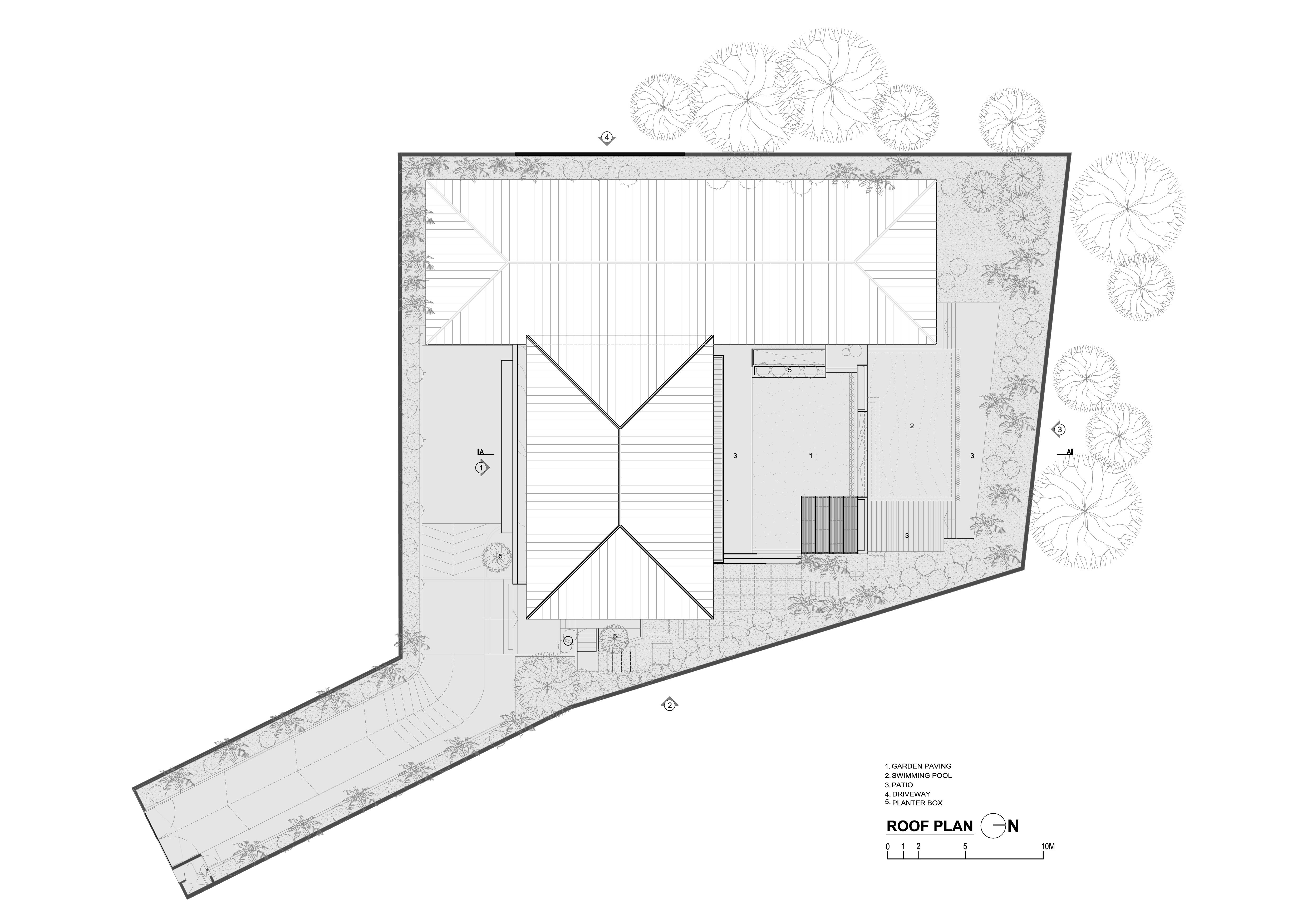
Nằm ở đất nước Singapore kỳ lạ, ngôi nhà 21 Jervois Hill – dự án hoàn thành bởi hãng AR43 Architects được thiết kế như một khóa tu cho cơ thể, tâm trí và linh hồn. Hệ thực vật xum xuê bao quanh nhà đã gây ảnh hưởng mạnh mẽ trong việc hình thành nên kiến trúc hiện tại của ngôi nhà.
Khách hàng yêu cầu một không gian sống thư giãn được thiên nhiên bao quanh và thiên nhiên cũng đóng vai trò như một phần của ngôi nhà. Để tạo sự kết nối gần gũi với khung cảnh xung quanh, các kiến trúc sư đã xem việc sử dụng vật liệu tự nhiên trong xây dựng ngôi nhà là một điều chắc chắn phải có.
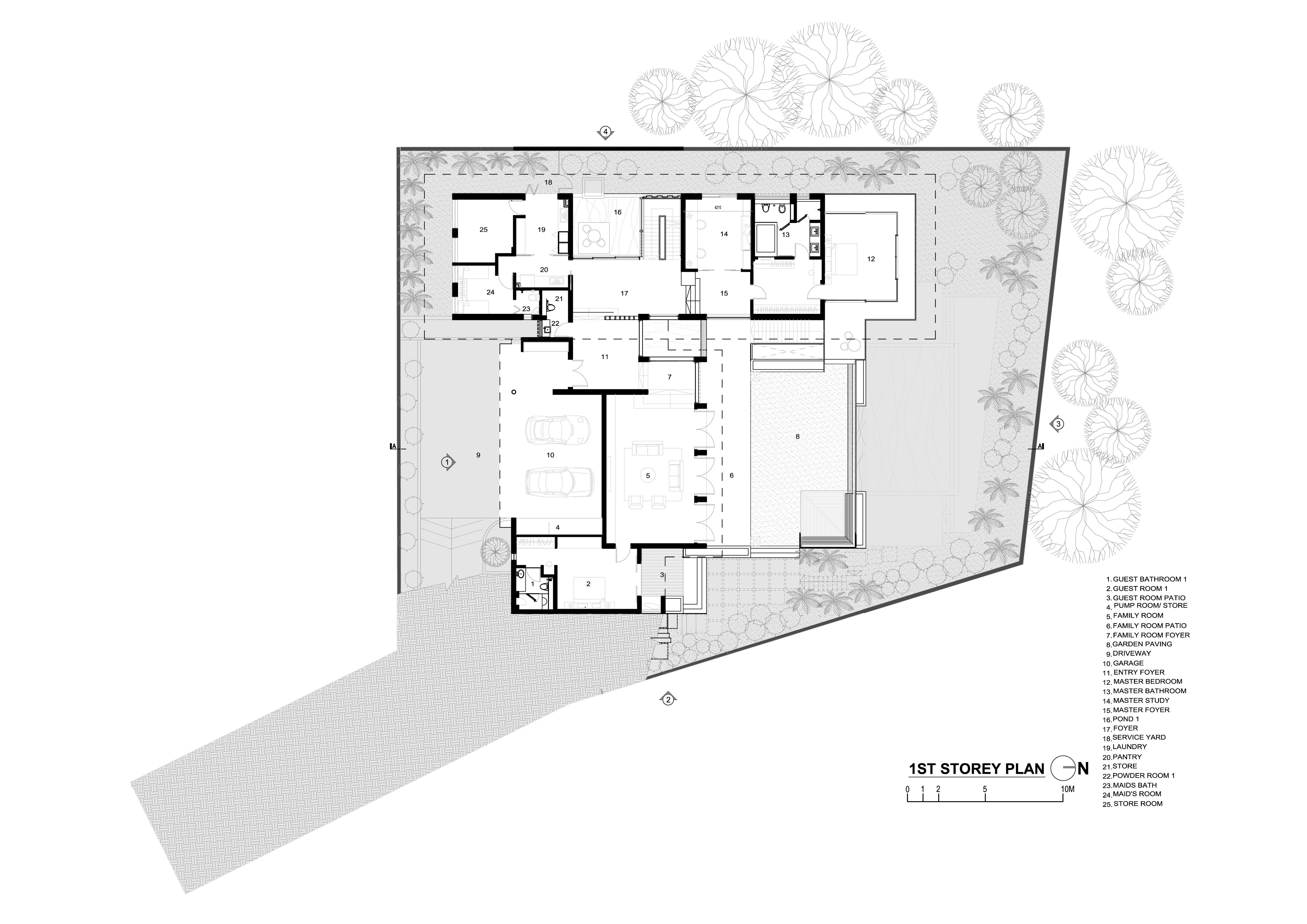
Như bất cứ những nơi lấy ý tưởng thiền, 21 Jervois Hill cho cảm giác mát mẻ và cũng truyền cảm hứng an lạc. Kiến trúc ngôi nhà bao gồm hệ thống thác nước nhỏ ở một bên nhà và chảy thẳng xuống hồ bơi. Khung cảnh đặc biệt này tạo ra không khí thư giãn, cho phép chủ nhà tận hưởng thiên nhiên trong tất cả vẻ đẹp mê hồn của nó.
Ngôi nhà bao gồm một khu vực chính, một gian lớn và một cánh phụ. Phòng khách mở ra khung cảnh sân vườn trong khi phòng ngủ lại hướng ra khu rừng nhiệt đới, giúp gia chủ được truyền cảm hứng như đang ở thiên đường vào mỗi sáng thức giấc.
Bình An
(Theo freshome.com)

















Bình luận về bài viết này