Đơn vị thiết kế: Metropolis
Địa điểm xây dựng: Casuarinas, Lima, Peru
Thi công: José Orrego
Tổng diện tích: 330m2
Ảnh: Juan Solano
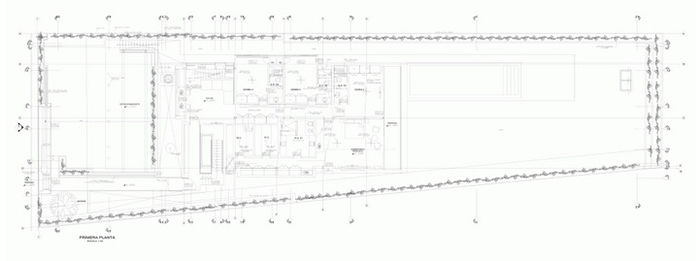
Dự án nằm trong khu đô thị hóa “Las Casuarinas” ở thủ đô Lima, Peru trong một khu đất có diện tích 1.080,10m2. Tòa nhà gồm hai tầng với một lối vào ở tầng trên. Thông qua cây cầu từ bãi đỗ xe, gia chủ có thể đi vào tầng một được phân chia như sau:
Một phòng khách với cầu thang thứ hai nối xuống tầng hầm, một phòng ngủ lớn với hai tủ quần áo, một phòng tắm, sân thượng và hai phòng ngủ nhỏ hơn, mỗi phòng đều có phòng tắm riêng.
Chủ nhà cũng có thể đi lên tầng trên bằng cầu thang chính ở tầng một, nơi gồm một phòng sinh hoạt chung có chiều cao gấp đôi, một phòng khách, phòng tắm dành cho khách, phòng ăn và nhà bếp. Không gian của các gia nhân được tách riêng khỏi phần còn lại của tòa nhà, bao gồm cả khu vực giặt ủi và các phòng ngủ.
Vườn nằm ở tầng trên và được xây với hai cột đá đóng vai trò như hàng rào bao quanh chu vi tòa nhà. Ngoài ra, tòa nhà còn được bao vây bởi những bụi cây cao 3m.
Nhìn bề ngoài tòa nhà trông giống như một container hiện đại như thế hệ đầu tiên trong các dự án của Le Corbusier, nơi mà các vật liệu tự nhiên như đá, đá cẩm thạch và gỗ được sử dụng. Tầng trên được xây như một chiếc hộp làm bằng thủy tinh có tầm nhìn hoàn hảo ra cảnh quan xung quanh và cũng đón ánh sáng bên ngoài.
Tầng đầu tiên giống như container với mái nhà cao để tập trung sự chú ý của thiết kế nội thất cho tầng trên. Kiến trúc sư cũng đưa ý tưởng sáng tạo để ngôi nhà có thể “phát triển” cùng với chủ sở hữu. Toàn bộ căn nhà có nhiều ý tưởng khác nhau để kết hợp phong cách chiết trung đương đại nhưng cũng là thiết kế trong tương lai.
Bình An
(Theo archdaily.com)
























Bình luận về bài viết này