Đơn vị thiết kế: Meridian 105 Architecture
Địa điểm xây dựng: Denver, CO, Hoa Kỳ
Thi công: Chad Mitchell
Tổng diện tích: 2.842m2
Năm hoàn thành: 2013
Ảnh: Raul J. Garcia
Kỹ thuật kết cấu: Structural Design Collaborative
Nhà thầu: Caliber Construction
Đặt trên một mảnh đất rộng có độ nghiêng 28′ trong khu phố Lohi Denver, Hoa Kỳ, ngôi nhà trên đường 33 là một dự án mở với không gian sống được phân chia giữa ba cấp độ. Trong khi chất lượng đô thị của khu phố đã như ý muốn của chủ nhà, kiểu thiết kế ngôi nhà là một giải pháp sáng tạo hòng duy trì nội thất bên trong mà vẫn có được không gian riêng từ mảnh sân sau, tránh xa sự ồn ào do xe cộ gây nên từ con đường lớn. Theo thiết kế này, hãng Meridian 105 đã đề xuất nâng nền tầng một của ngôi nhà cao thêm 1m8 so với vỉa hè.
Việc này không chỉ giúp cho không gian sống được tách biệt với đường phố mà còn giúp khu vườn được hưởng đầy đủ ánh sáng tự nhiên và tạo ra không gian hữu dụng. Để duy trì sự kết nối trực tiếp với bên ngoài, các thợ xây dựng đã lấp đầy đất vào sân sau của ngôi nhà nhằm đáp ứng độ cao của sàn, đồng thời cũng tạo ra một sân sau có vị trí cao hơn vỉa hè. Giải pháp này cũng giúp sử dụng các vật liệu thô cho tầng hầm, giúp tiết kiệm chi phí không cần thiết.
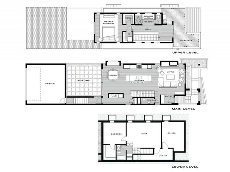
Tầng chính của ngôi nhà bao gồm nhà bếp, phòng ăn, và phòng khách, trong khi tầng trên là phòng ngủ lớn có lối ra sàn ngoại thất bên ngoài. Với tầm nhìn hướng ra đường chân trời trung tâm thành phố về phía Nam, phần trên của ngôi nhà đã được thiết kế thành sàn ngoại thất áp mái.
Mái nhà nhọn của ngôi nhà cũng được xây theo đúng yêu cầu quy hoạch của thành phố, đáp ứng an toàn cho việc cất cánh và đáp của các máy bay có số lượng lớn. Chiều cao nhà cũng phù hợp với bối cảnh khu vực xung quanh. Ngoài ra, ngôi nhà cũng có thêm hai phòng ngủ phụ được xây ở tầng dưới. Mặt tiền nhà được ốp gỗ Cedar Tây phương với màu nâu sẫm hài hòa.
Bình An
(Theo archdaily.com)












Bình luận về bài viết này