Được thiết kế trong thời gian gần đây bởi hãng Christopher Simmonds, ngôi nhà nằm ở Ottawa, Canada là một nơi cư trú hiền hòa và tĩnh lặng. Bao phủ bởi cây xanh và thảm thực vật tươi tốt, nhà Gatineau Hills được xem như một bông hoa nở xinh tươi trong những ngày u buồn của mùa thu Canada.
Nhìn từ bên ngoài, ngôi nhà có thể tạo cảm giác hơi bất thường, nhưng ngay khi khám phá sự hòa quyện tuyệt vời của màu sắc và vẻ đẹp của ánh sáng tự nhiên trong từng ngõ ngách của ngôi nhà, bạn sẽ hiểu lý do tại sao tất cả mọi thứ ở Gatineau Hills đều tạo nên vẻ đẹp mê hồn. “Việc sử dụng gỗ khai hoang cho tầng hai bên ngoài ngôi nhà và bột xi-măng trắng cùng với vật liệu kính cho tầng trệt giúp tạo sự cân bằng trong kết cấu chung. Nội thất bên trong được trang hoàng mộc mạc nhưng hiện đại với sàn gỗ sồi được xử lý thủ công và sơn phết sơn mài màu trắng bên ngoài“.
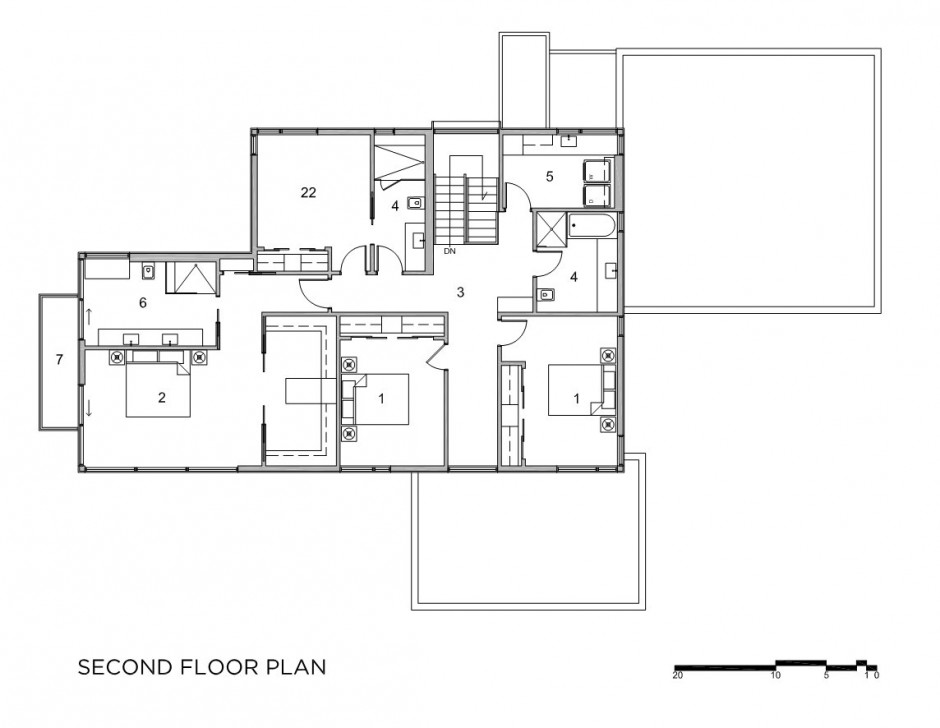
Ngôi nhà cho bạn cảm giác gọn gàng và tươi sáng. Tầng trệt được coi là cốt lõi của ngôi nhà, bao gồm phòng khách rộng mở, nhà bếp và cả phòng ăn. Các tấm kính lớn thay thế cho những bức tường chật hẹp cùng với đồ nội thất sơn mài trắng giúp tăng cảm giác thông thoáng. Sàn nhà và một số đồ trang trí nội thất được làm bằng gỗ khai hoang. Điều này làm nên một không gian sống thanh khiết, vô trùng nhưng vẫn ấm áp.
Bình An
(Theo freshome.com)




















Bình luận về bài viết này