Hãng Fearns Studio vừa hoàn thành việc thiết kế cho một ngôi nhà xinh xắn tại Sydney, Úc. Bondi House là ví dụ thú vị về việc kiến trúc hiện đại có thể tạo ra những ngôi nhà “mềm mại” bằng cách để thiên nhiên thể hiện vai trò vốn có của nó.
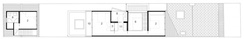
Ngôi nhà bao gồm một tầng một hình ống bằng vật liệu gỗ, bên dưới là tầng trệt được xây bằng gạch. Ánh sáng tự nhiên chiếu sáng từ sàn cho tới trần nhà thông qua hệ thống các cửa sổ đối diện với mảnh sân trong.
Nội thất sắp xếp theo phong cách tối giản với các yếu tố quan trọng tạo nên những tính năng và cảm giác hấp dẫn: “Các bức tường thạch cao trắng, trần và sàn nhà bê tông, tủ, cửa sổ, cửa ra vào bằng gỗ sồi và sàn Blackbutt tạo cảm giác ấm áp. Sâu vào bên trong là nhà bếp và phòng khách với không gian nhỏ gọn, mặt bằng mở rộng đón ánh sáng nhịp nhàng. Các cửa ra vào được thiết kế trượt càng giúp tăng độ thoáng và rộng mở cho ngôi nhà“. (Ảnh: Tom Ferguson)
Bình An
(Theo freshome.com)















Bình luận về bài viết này