Ngôi nhà Mimosa Road tại Singapore vừa được hoàn thành gần đây bởi đội ngũ sáng tạo của Park + Associates. Các kiến trúc sư cho biết việc thiết kế ngôi nhà với vẻ ngoài mạnh mẽ chính là cách “nắm bắt thiết kế hiện đại thông qua các đường thẳng và mảng khối khỏe khoắn bằng việc lựa chọn tỉ mỉ và đầy sáng tạo các vật liệu, tạo ra cảm giác mộc mạc mà ấm áp cho ngôi nhà. Một trong những vật liệu đáng chú ý là gạch nung màu da cam gợi nên hình ảnh ngôi nhà lúc ban đầu“.
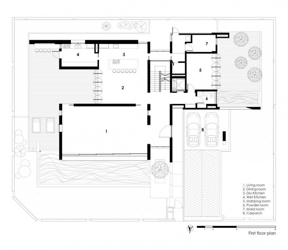
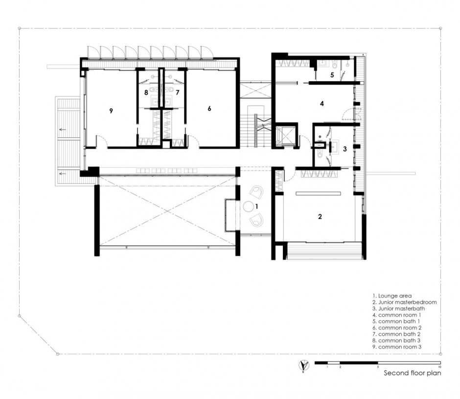
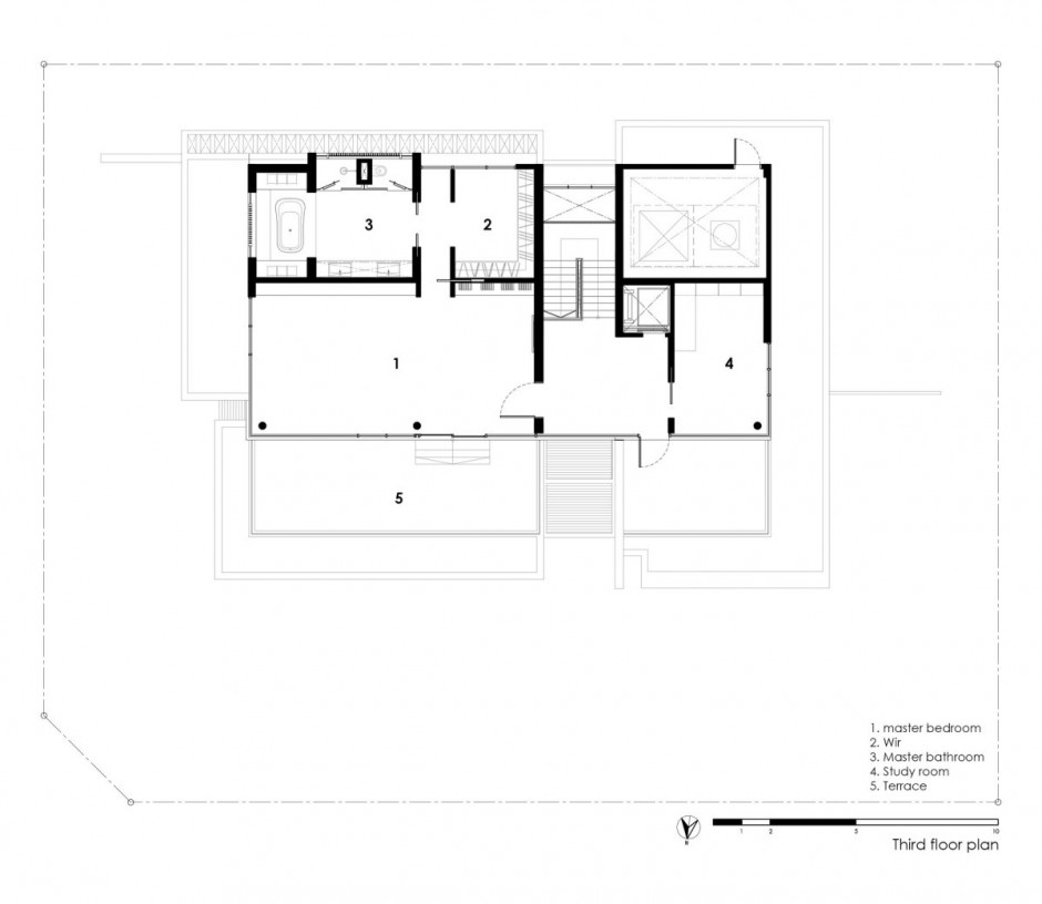
Mimosa Road gồm nhiều căn phòng được bao quanh là khu vực ngoài trời phóng khoáng và rộng rãi. Cửa kính lớn cho phép tầm nhìn không bị giới hạn từ mỗi phòng. Điều cốt lõi của thiết kế căn nhà là phòng khách cao gấp đôi so với cấu trúc bình thường và được kết nối với sân thượng và bể bơi từ một hướng, với phòng ăn từ một hướng khác. Ánh sáng của ngôi nhà được đảm bảo bằng hệ thống đèn chùm và đèn tường hiện đại. Tường và cột nhà được thiết kế mạnh mẽ nhưng ấm áp bằng vật liệu gạch, gỗ và những đồ trang trí đầy cảm hứng. (Ảnh: Edward Hendricks)
Bình An
(Theo freshome.com)














Bình luận về bài viết này