Đơn vị thiết kế: Christopher Botterill
Vị trí xây dựng: Brunswick, VIC, Úc
Tổng diện tích: 92m2
Năm hoàn thành: 2011
Ảnh: Christopher Alexander
Nằm ở ngoại ô phía Bắc của thành phố Melbourne, Brunswick House được đặt giữa sự pha trộn của chủ nghĩa chiết trung các hình thái khu dân cư và công nghiệp. Có lớp vỏ cũ là một ngôi nhà bỏ hoang, tòa nhà đã được tái chế với sắp đặt không gian và vật liệu hiện đại tập trung mạnh vào yếu tố phát triển bền vững.
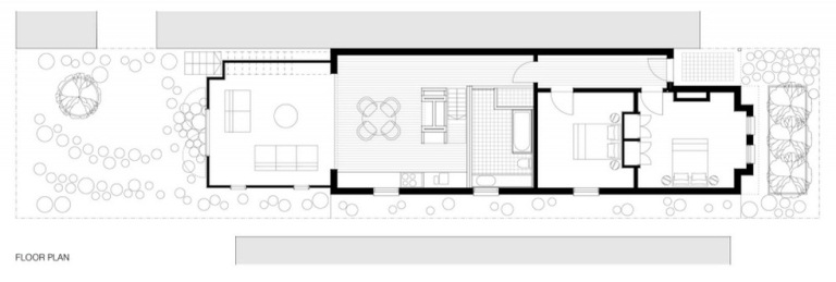
Ở phía trước của ngôi nhà, hai phòng ngủ chính được giữ lại bằng một chiếc tủ lớn đóng vai trò ngăn chia các phòng. Phòng tắm và bếp được xây dựng tập trung nhằm cho phép phòng khách trở thành không gian sống mở ra khu vườn và lối lên sân thượng. Phía trên phòng tắm là một phòng làm việc/ phòng ngủ liên thông với phòng khách đồng thời cũng cung cấp lối đi lên kho đặt trên sân thượng. Lò sưởi cũ đã ngừng hoạt động trước đó được giữ lại nhằm gia cố cho cấu trúc mái và cung cấp chỗ dùng làm phòng đựng thức ăn cùng hầm rượu.
Khi mở cánh cửa đôi phía sau nhà ra, tấm thảm xanh lá cây trong phòng khách khiến chúng ta có cảm giác như kết nối với bãi cỏ tươi tốt mềm mại của khu vườn từ trong ra ngoài. Hình thức và vật liệu xây dựng, đặc biệt là yếu tố gỗ đen bề ngoài của Brunswick House giúp ngôi nhà trở nên cá tính và độc đáo.
Bể nước mưa nằm dưới chân cầu thang bên ngoài được sử dụng cho việc tưới tiêu vườn rau hữu cơ phía trước nhà. Brunswick House cũng được xây bằng các vật liệu mới có nguồn gốc địa phương và hoàn thành bằng tay trong quá trình xây dựng. Tất cả các cửa sổ của ngôi nhà được tân trang lại bằng kính hiệu suất cao.
Xung quanh nhà được trang trí bằng những gạch lót đường bằng bê tông xen kẽ với những viên gạch đá tròn đặt trên lớp cỏ mềm mại, tất cả tạo ra một cảnh quan môi trường năng động và vui tươi.
Bình An
(Theo archdaily.com)












Bình luận về bài viết này