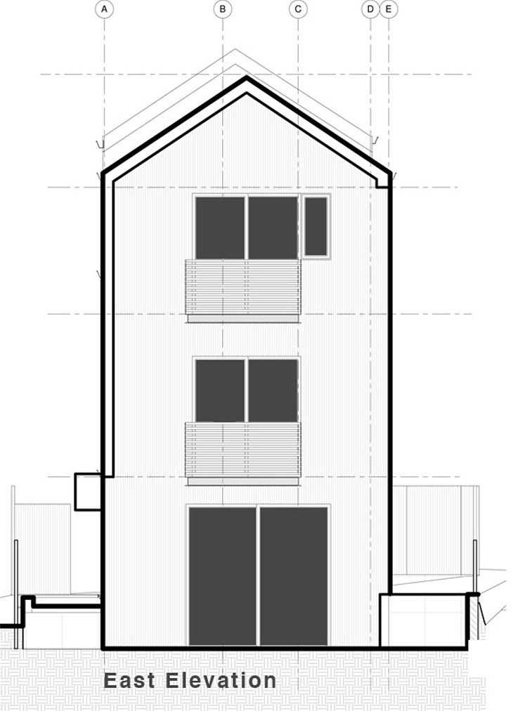
Nhà Lever Homes ở Seattle, Hoa Kỳ được xây dựng như một ngôi nhà gồm có hai căn hộ kết hợp. Hình dạng ống hướng thẳng lên trên cùng với mái nhà hình tam giác chính là điều khiến cho ngôi nhà trở nên nổi bật và độc đáo so với những ngôi nhà khác trong khu phố. First Lamp Architecture and Construction là hãng thiết kế và cũng là nhà xây dựng của dự án này. Không gian chật hẹp của mảnh đất đã ảnh hưởng trực tiếp lên thiết kế của ngôi nhà, nhưng bạn phải thừa nhận rằng ngôi nhà tuy trông khác thường nhưng thú vị. “Do tỷ lệ chật hẹp của mảnh đất, ngôi nhà được thiết kế với cấu hình trải dài từ phía trước ra sau, phụ thuộc cảnh quan chung của con phố. Căn hộ gồm một phòng ngủ ở hướng Đông có diện tích khoảng 280m2 và căn hộ còn lại gồm ba phòng ngủ với tổng diện tích khoảng 840m2“.
Bằng cách kết hợp nhiều loại vật liệu khác nhau, các kiến trúc sư đã tạo nên một cấu trúc đơn nhất và hiện đại cho ngôi nhà. Căn hộ một phòng ngủ ở phía trước và Căn hộ ba phòng ngủ bố trí ở phía sau. Đó là cách mà hãng First Lamp thiết kế nên một không gian sống thoải mái trong một cấu trúc với chiều rộng khoảng 8m. Với diện tích đất nhỏ hẹp, ngôi nhà cần đến những giải pháp tốt nhất như nội thất gọn gàng và tạo cảm giác thoải mái. Ngoài ra, để thiết kế nên một không khí ấm cúng và tạm quên đi cảm giác chật chội, đồ nội thất bằng gỗ tự nhiên là lựa chọn thực tế và hoàn hảo cho ngôi nhà.
Bình An
(Theo freshome.com)























Bình luận về bài viết này