Villa Di Gioia là một biệt thự gia đình nằm ở vùng thôn dã của Apulia, ngoài khu vực đô thị Bari và gần biển Adriatic (miền Nam nước Ý). Xây dựng bởi hãng Pedone Working, hoàn thành trong năm 2011, căn biệt thự được thiết kế như một không gian mở đầy cảm hứng và hài hòa với khung cảnh xung quanh. Với phong cách Địa Trung Hải điển hình: nhẹ nhàng và thoải mái, Villa di Gioia được tạo bởi những hình khối kiểu dáng đẹp và dứt khoát – kiểu thiết kế mang phong cách tối giản của những ngôi nhà hiện đại hoàn hảo. Việc sử dụng nhiều lớp kính trong suốt là một trong những đặc trưng của Villa di Gioia nhằm đón nhiều ánh sáng mặt trời vào trong, tạo một không gian sống tràn ngập ánh sáng.
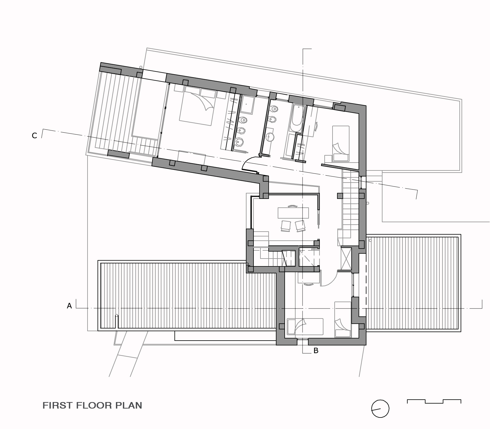
Bức tường bê tông trắng nổi bật và các mảng kính (cũng là cửa sổ cách điện với lớp kính dày gấp ba nhằm ngăn lượng khí thải) thay thế các cửa sổ cổ điển của biệt thự. Nếu chỉ dùng ba từ để mô tả căn biệt thự này thì đó chính là : sự đơn giản. Một lối đi nằm ở trung tâm nối khung cảnh bên ngoài với không gian sống bên trong. Kiểu thiết kế đơn giản gồm đồ nội thất tối giản hiện đại và tất cả đều thông thoáng ra sân. Tầng trệt có nhà bếp, phòng khách – nơi các hoạt động chủ chốt của các thành viên trong gia đình diễn ra và các phòng chức năng khác với diện tích khác nhau. Căn biệt thực cũng bao gồm một cầu thang mở dẫn đến phòng ngủ.
Được xây dựng với tính năng bền vững, Villa Di Gioia là một ví dụ hoàn hảo của ngôi nhà năng lượng thấp mà cả kiểu dáng lẫn cảm giác đều trên cả tuyệt vời.
Bình An
(Theo freshome.com)





















Bình luận về bài viết này