Hãy nhìn qua kiểu kiến trúc táo bạo của ngôi nhà Mullet được hoàn thành bởi hãng thiết kế March Studio đến từ nước Úc. Theo nhà phát triển dự án, nhà Mullet chính là “sự trình diễn những đường nét gấp khúc đơn giản nhưng mạnh mẽ trên mảnh đất nhỏ nhưng đáng giá“. Các khách hàng là ông Scott Smith và bà Phoebe Moore ủy quyền cho hãng thiết kế với mong muốn có một ngôi nhà mới và thoải mái, nhưng cũng phải mang kiểu thiết kế đầy thách thức.
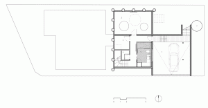
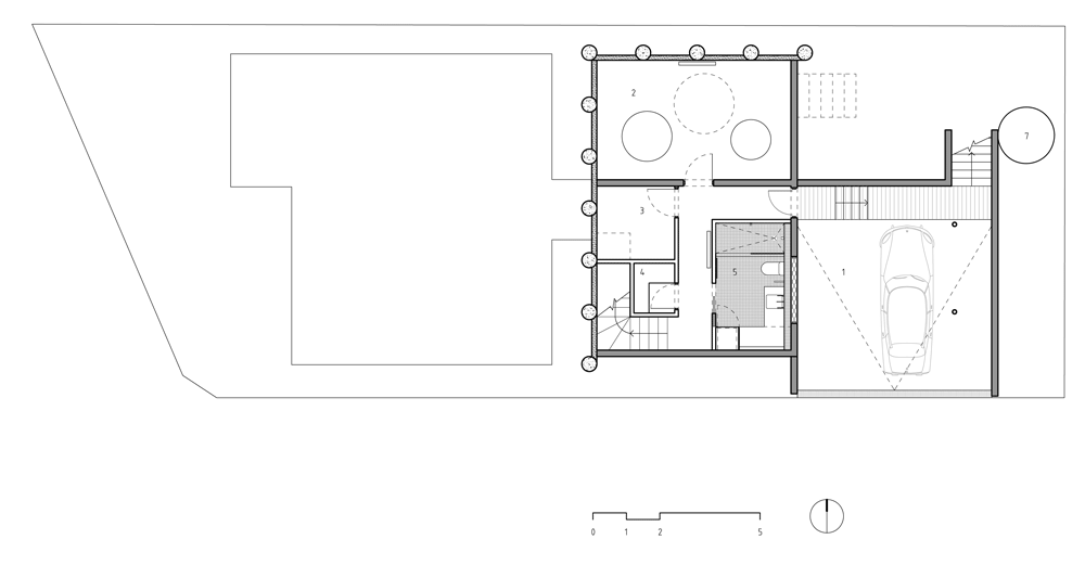
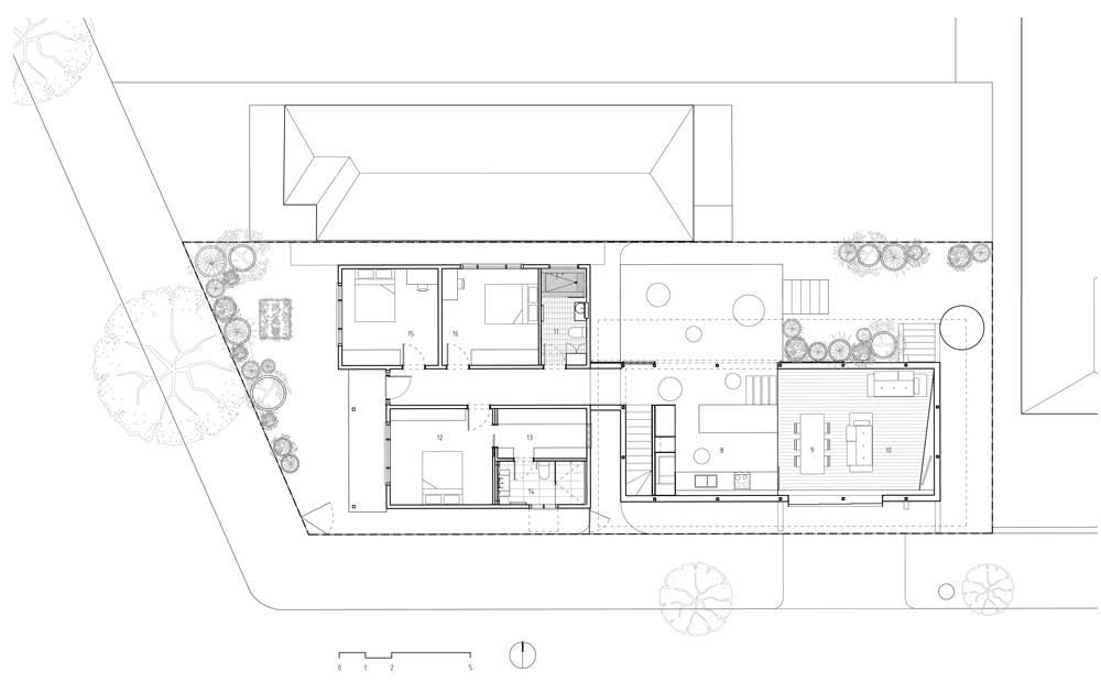
Phần cấu trúc mở rộng độc đáo gồm hai tầng của ngôi nhà gồm một mái nhà lớn vát cạnh tạo hình dáng khí động học cho khung nhà ốp gỗ xuất phát từ cảm hứng của Mullet. Tầng hầm là khu vực nhà để xe thông thoáng, trong khi hai tầng bên trên được bao bọc bởi kính trong suốt. Các phòng ngủ và phòng vệ sinh mới xây thêm cũng nằm ở tầng trên. “Phần mở rộng này không nhất thiết phải hòa hợp với phong cách cũ mà chỉ cần thể hiện chút ít đồng nhất theo ý khách hàng, cùng với việc đón nhiều ánh sáng mặt trời và cảnh quan từ một trong những nơi có tầm nhìn đẹp nhất của thành phố Melbourne là được” – Kiến trúc sư giải thích.
Bình An
(Theo freshome.com)














Bình luận về bài viết này