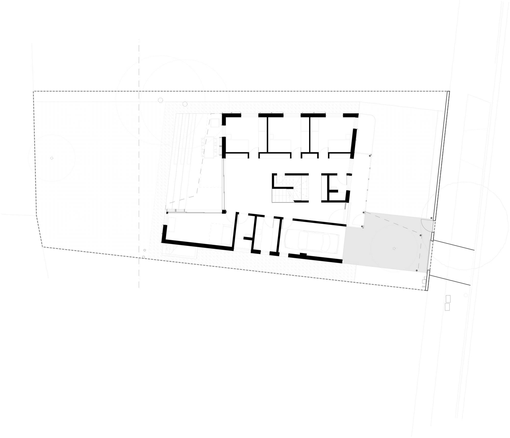
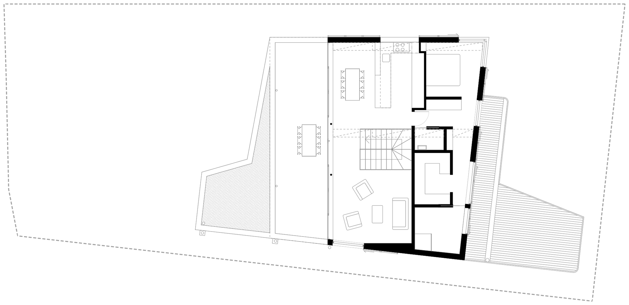
Ngôi nhà tại Greenwich theo phong cách hiện đại này được thiết kế bởi hãng VOLPATOHATZ SA để thay thế ngôi nhà cũ của một khách hàng tuổi tứ tuần. Yêu cầu của gia chủ là vẫn duy trì hướng nhìn của ngôi nhà, vì ngôi nhà có góc nhìn toàn cảnh hết sức ngoạn mục hướng ra vịnh. Tầng trên của ngôi nhà đã được sửa chữa lại hoàn toàn từ chỗ ở cũ hỗn độn, với phòng khách có không gian mở, thoáng mát và tươi sáng, nơi mà chủ nhà cảm thấy thật sự thoải mái và có nhiều trải nghiệm khác nhau trong ngôi nhà mới của mình.
Bên trong ngôi nhà được sắp xếp theo kiểu không gian rộng mở, giúp cho mọi hoạt động trong nhà vẫn có thể kết nối với bên ngoài. Tầng trệt chia ra gồm phòng ngủ kiểu dáng đơn giản với các khu vực nhà kho ngăn theo chiều dọc. Một thư viện tại nhà tuyệt vời là nơi ấp ủ những dự định mới. Đồng thời đây cũng được xem là góc thư giãn hay phòng nghiên cứu tại nhà, thật sự là một thiên đường (các kiến thức) dành cho người yêu sách. Trên hết, với cấu trúc mới của ngôi nhà, dấu ấn mà nó để lại cho bất cứ ai nhìn thấy quả là không thể phai nhạt. “Dự án này kết hợp các hệ thống tiên tiến mang lại hiệu quả cao, bao gồm một bể nước mưa riêng biệt dưới boong, trong mái nhà là tấm pin mặt trời dạng ống sơ tán cung cấp nước nóng và thủy lực sưởi ấm. Tất cả đều nằm bên phía trên của khu vực nghiên cứu tại nhà.” (Ảnh: Richard Glover).
Bình An
(Theo freshome.com)






















Bình luận về bài viết này