Wren House là một dự án nhà ở được thiết kế và hoàn thành bởi hãng Chris Pardo Design: Elemental Architecture ở Missoula, Montana, Hoa Kì. Ngôi nhà được xây dựng theo xu hướng bền vững bởi chủ nhà và gia đình của ông có một sự tôn trọng sâu sắc đối với môi trường sống. Tự hào với một số tính năng bền vững độc đáo, Wren House đòi hỏi rất ít năng lượng và hệ thống sưởi ấm. “Ngôi nhà được trang bị hai mảng năng lượng mặt trời, một hệ thống nước dùng năng lượng mặt trời, hệ thống địa nhiệt, đèn LED tùy chỉnh ánh sáng và các cửa sổ hiệu suất cao Optiwin“.
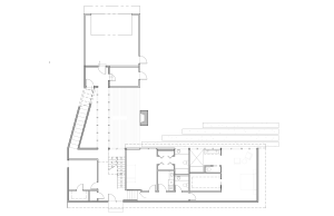
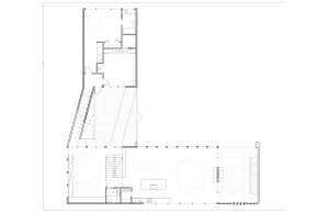
Ngôi nhà gồm có hai tầng và một sân thượng cho phép gia đình ngắm quang cảnh ngoạn mục của những ngọn đồi xung quanh. Mặt tiền hướng ra đường phố dường như hơi cứng nhắc, tạo cho bạn cảm giác hơi tối ở bên trong. Tuy nhiên, đó là chủ ý của kiến trúc sư với mục đích tạo thêm không gian riêng tư cho chủ nhà.
Ánh sáng và sự ấm áp đóng vai trò rất quan trọng trong thiết kế của ngôi nhà. Ánh sáng mặt trời nhẹ nhàng len vào nhà qua cửa sổ cao từ sàn đến trần nhà và hướng về phía sân. Điểm đáng tự hào nhất của ngôi nhà chắc chắn là sân thượng, nơi các thành viên có thể phóng tầm mắt ra xa và ngắm khung cảnh đầy mê hoặc xung quanh. (Ảnh: Steven Begleiter)
Bình An
(Theo freshome.com)




























Bình luận về bài viết này